Фильтр масляного тумана ВАУ МТ «КАМА» 8 000 М
Фильтр масляного тумана ВАУ МТ «КАМА» 8 000 М спроектирована на общую очистку воздуха от аэрозолей масляного тумана и паров СОЖ. Модель отличается высоким уровнем автоматизации и может оснащаться дополнительными модулями в том числе блоком - воздухораспределителем с поворотными соплами и блоком-каплеуловителем.
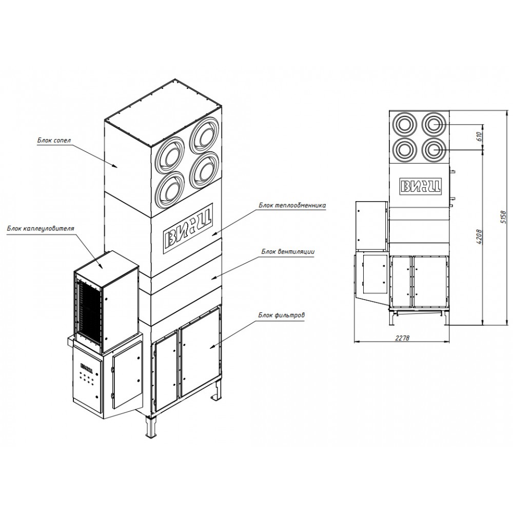
НАЗНАЧЕНИЕ:
ВАУ МТ «КАМА» 8000 М может использоваться для организации аспирации сразу от нескольких металлообрабатывающих станков или другого оборудования, выделяющего пары масляного тумана и СОЖ.
В сочетании с блоком-воздухораспределителем установка является отличным решением для общей рециркуляции очистки воздуха. Такая схема работы позволяет очищать воздух в условиях, когда использование местных вытяжек невозможно или затруднено, например, в помещениях с токарными станками открытого типа.
СТАНДАРТНОЕ ОСНАЩЕНИЕ:
- Корпус с блоком управления и камерой разряжения для осаждения пыли;
- Блок вентилятора, оснащенный встроенным вентилятором с частотным регулированием оборотов;
- Дренажный поддон, снабженный сливным краном;
- Встроенная защита двигателя от перегрузок и перегрева;
- Реле напряжения, перекоса и последовательности фаз;
- Плановый пуск и остановка электродвигателя;
- Световая индикация загрязнения фильтров грубой очистки;
- Механические сепараторы из нержавеющей стали;
- Основные патронные фильтр-элементы из стеклобумаги, класс очистки НЕРА 11;
- Съемные маслозащитные чехлы для патронных фильтр-элементов;
- Функция автоматического поддержания объемного расхода воздуха/разряжения всасывания;
- Двери с замками для быстрого доступа к фильтрующим элементам.
ДОПОЛНИТЕЛЬНОЕ ОСНАЩЕНИЕ:
- Автоматический насос перекачки собранного СОЖ/масла;
- Блок доочистки с фильтрующими элементами класса НЕРА 13/угольными фильтрами;
- Блок-каплеуловитель рекомендуется для очистки воздуха с большой концентрацией СОЖ, масляного тумана;
- Каплеуловители обеспечивают предварительную очистку воздуха (до 80% загрязнений), что продлевает срок службы сменных фильтров;
- Блок-воздухораспределитель с поворотными соплами (рекомендуется для рециркуляционной очистки);
- Блок-теплообменник, который в паре с чиллером обеспечивает охлаждение или нагрев исходящего из установки очищенного воздуха. Таким образом установка дополнительно обеспечивает поддержание заданного температурного режима в помещении.
Дополнительные блоки, в том числе блок-теплообменник устанавливаются в виде надстройки над основной вентиляционно-аспирационной установкой, при этом изменяется только общая высота установки.
Возможна установка на уже действующую вентиляционно-аспирационную установку производства завода «ВИНЦ»
ТЕХНИЧЕСКИЕ ХАРАКТЕРИСТИКИ:
| Наименование характеристики | Значение характеристики |
| Производительность (м3/час) | 6 000 |
| Потребляемая мощность мин.-макс. (Вт) | 7 500 |
| Класс очистки | Н11 |
| Уровень шума, максимальный (дБ) | 77 |
| Номинальное напряжение (В) | 380 |
| Тип вентилятора | центробежный |
| Тип применяемых фильтров | патронные |
| Размер (мм.) /количество фильтров (шт) | 350х1200/6 |
| Масса (кг) | 860 |
| Габаритные размеры ДхШхВ, (мм) | 2280х985х3250 |
| Аспирационное оборудование | |
| Габаритные размеры ДхШхВ | 2280х985х3250 мм |
| Класс очистки | Н11 |
| Масса | 860 кг |
| Номинальное напряжение | 380 В |
| Потребляемая мощность | 7 500 Вт |
| Производительность | 6 000 м3/час |
| Размер - количество фильтров | 350х1200мм x 6шт |
| Тип вентилятора | центробежный |
| Тип применяемых фильтров | патронные |
| Уровень шума, макс | 77 дБ |
