Ручной гидравлический штабелер HV 0516
HV 0516 SUPER HIGH LIGHT
Перемещение вручную, подъем вручную.
Надежный универсал среди ручных штабелеров, он играючи наведет Вас на новые идеи: благодаря регулируемым и съемным вилам Вы в миг превратите его в идеальное устройство для любого применения. Однако и в способном к перевоплощениям HV 0516 благодаря его весу и незначительному сопротивлению качению кое-что гарантированно остается всегда неизменным: превосходная маневренность.
Производство Pfaff Silberblau (Германия)
|
Тип |
|
HV 0516 |
|
№ изделия |
|
040005551 |
|
Грузоподъёмность в т |
|
0,5 |
|
Колёса, шины ходовой части* |
|
NYL/PUR |
|
Управляемые колёса в мм |
|
150х40 |
|
Грузовые ролики в мм |
|
80х35 |
|
Количество колёс/грузовых роликов |
|
2/2 |
|
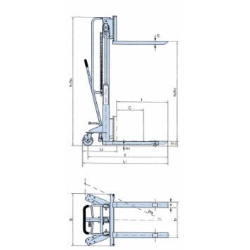
Высота подъёмной рамы в сложенном состоянии в мм |
h1 |
2000 |
|
Расстояние до центра тяжести груза в мм |
c |
600 |
|
Свободный ход в мм |
h2 |
1520 |
|
Высота подъёма в мм |
h3 |
1520 |
|
Высота подъёмной рамы в выдвинутом положении в мм |
h4 |
2000 |
|
Расстояние между осями колёс в мм |
y |
1630 |
|
Макс, высота подъёма в мм |
h3+h13 |
1600 |
|
Высота опущенных вил в мм |
h13 |
80 |
|
Общая длина в мм |
L1 |
1690 |
|
Длина передней части в мм |
L2 |
550 |
|
Общая ширина в мм |
B |
800 |
|
Длина вил в мм |
l |
1150 |
|
Ширина вил х толщина в мм |
e x s |
100×45 |
|
Рабочая ширина вил регулируется от до в мм |
b1 |
200/770 |
|
Дорожный просвет в мм |
m1 |
25 |
|
Высота подъема за движение рычага с грузом/без груза в мм |
|
32 |
|
Радиус поворота в мм |
Wa |
1500 |
|
Собственный вес в кг |
|
217 |
