+7 (495) 542-40-78
многоканальный

Электрический самоходный штабелер PSE 10M

Артикул: PSE 10M
346400 руб.
Снята с производства

PSE10L-C — прямой аналог, 10-тонный

Указанная цена соответствует базовой комплектации. В зависимости от наличия на складе, цена может отличаться.

Самоходный штабелер с мономачтой с грузоподъемностью 1000 кг и высотами подъема до 2000 мм. Оснащается необслуживаемыми батареями и встроенным зарядным устройством.

Cтандартная комплектация включает:

  • DC-двигатель хода
  • Контроллер Curtis
  • Необслуживаемая VRLA-AGM батарея
  • Встроенное ЗУ

Штабелер PSE 10M позволяет выполнять грузоподъемные операции небольшой интенсивности с отличным обзором груза, отличается компактностью и мобильностью.

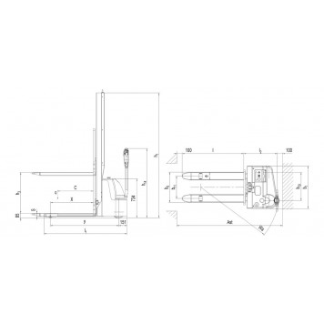
Основные технические параметры:

Основные параметры 1.2 Модель   PSE 10M
1.3 Тип   Самоходный
1.4 Положение оператора   Пеший
1.5 Грузоподъемность Q (кг) 1000
1.6 Центр загрузки c (мм) 600
1.8 Расстояние от центра оси до вил x (мм) 800
1.9 Колесная база y (мм) 1281
Массы 2.1 Масса кг 454
2.2 Нагрузка на переднюю/заднюю ось с грузом кг 477/957
2.3 Нагрузка на переднюю/заднюю ось без груза кг 335/119
Колеса, ходовая часть 3.1 Тип колес   Полиуретан (PU)
3.2 Размер передних (ведущих) колес   Ø220×70
3.3 Размер задних колес   Ø80×93
3.4 Дополнительные колеса   Ø124×60
3.5 Количество колес спереди/сзади (х-ведущие)   1x+1/2
3.6 Колея передних колес b10 (мм) 529
3.7 Колея задних колес b11 (мм) 390
Размеры 4.2 Габаритная высота (min) h1 (мм) 2349 1949 1500
4.4 Высота подъема h3 (мм) 1915 1515 715
4.9 Высота ручки (min/max) h14 (мм) 785/1300
4.15 Высота вил в нижнем положении h13 (мм) 85
4.19 Общая длина l1 (мм) 1778
4.20 Длина до фронта вил l2 (мм) 628
4.21 Общая ширина b1 (мм) 800
4.22 Размеры вил s/e/l (мм) 60/150/1150
4.25 Ширина вил b5 (мм) 540
4.32 Клиренс в центре базы m2 (мм) 35
4.34 Ширина прохода с паллетой 800×1200 Ast (мм) 2248
4.35 Радиус разворота Wa (мм) 1485
Характеристики 5.1 Скорость движения (с грузом/ без груза) км/ч 4.3/4.5
5.2 Скорость подъема (с грузом/ без груза) мм/с 110/160
5.3 Скорость движения вил вниз (с грузом/ без груза) мм/с 130/110
5.8 Преодолимый уклон max (с грузом/ без груза) % 5/10
5.10 Тормозная система   Электромагнитный тормоз
Параметры электрической системы 6.1 Мощность двигателя движения кВт 0.45
6.2 Мощность двигателя подъема кВт 2.2
6.3 Стандарт АКБ  
6.4 Напряжение питания, номинальная емкость АКБ В/Ач 2×12/85
6.5 Масса АКБ кг 2х 55
6.6 Потребление энергии в соотв. с циклом VDI кВтч/ч 0.73
Другое 8.1 Тип управления ходом   DC
8.4 Уровень шума dB(A) <70
Данные согласно VDI 2198. Производитель оставляет право вносить изменения в конструкцию техники.
Мы охотно ответим на все ваши вопросы по телефону: (495) 225-54-24 или по электронной почте: info@sklad-inzhener.ru